Ref Ogłoszenia
N7691
Rynek
1 : Pierwotny, 0 : Wtórny
Typ nieruchomości
Penthouse
Kraj
Spain
Okolica
Santa Rosalia Lake And Life Resort
Sypialnie
3
Łazienki
2
Basen
1
Metraż
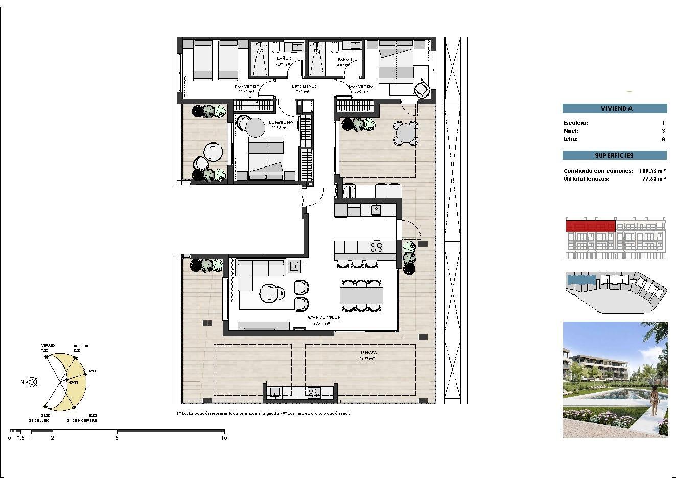
109 m²
Pow. użytkowa
99 m²
Taras
77 m²
Odległość od plaży
4000 m²
Udogodnienia
- Elevator/Lift
- Communal Pool
- Gated
- Terrace: 77 Msq.
- Number of Parking Spaces: 1
- Beach: 4000 Meters
- Near Schools
- Near Commercial Center
- Location: Coastal, Urbanisation
- Useable Build Space: 99 Msq.
- Air Conditioning: Pre-Installed
- Double Bedrooms: 3
Pobór Energii
B
Emisja energii
B
RYNEK PIERWOTNY KOMPLEKS MIESZKALNY W PRYWATNYM ZAMKNIĘTYM KURORCIE W PROWINCJI MURCJA
Rynek Pierwotny kompleks mieszkalny składa się z 42 luksusowych apartamentów i penthouse’ów z 2 i 3 sypialniami, 2 łazienkami, kuchnią na otwartym planie z przestronnym salonem, wbudowanymi szafami i tarasami.
Apartamenty na parterze mają prywatny ogród, apartamenty na środkowych piętrach taras, a penthousy duży prywatny taras.
Ta ekskluzywna inwestycja ma zagospodarowany teren wspólny, który szczyci się wspaniałym współczesnym basenem, klubem towarzyskim i terenami zielonymi.
Wszystkie apartamenty posiadają podziemny parking i komórkę lokatorską.
Znajduje się w prywatnym ośrodku zamkniętym, z głównym wejściem i całodobową ochroną. Ośrodek został zaprojektowany wokół imponującego terenu zielonego o powierzchni 126 000 m2.
Obejmuje ścieżki spacerowe i rowerowe, obiekty sportowe, korty do padla i korty tenisowe, pole do minigolfa, ogrody, parki dla psów, tereny rekreacyjne, klub…. Również w centralnej części znajduje się klejnot kurortu, krystalicznie czyste sztuczne jezioro o powierzchni prawie 17 000 m2, otoczone białymi piaszczystymi plażami i palmami, przynosząc kawałek Karaibów do regionu Murcji.
Na jeziorze znajdują się 2 wyspy, z których jedna ma własny bar, a także „plażowe Chiringuitos” rozmieszczone wokół jeziora.
Ośrodek jest strategicznie położony niecałe 4 km od plaży i miasta Los Alcázares, gdzie można uprawiać różne sporty wodne, w otoczeniu kilku pól golfowych i miasta Cartagena niecałe 15 minut jazdy samochodem i 22 km od lotniska w Murcji, dzięki czemu w zasięgu ręki znajduje się szeroka oferta kulturalna, gastronomiczna i sportowa.