Ref Ogłoszenia
N8720
Rynek
1 : Pierwotny, 0 : Wtórny
Typ nieruchomości
Villa
Kraj
Spain
Okolica
Serena Golf
Sypialnie
3
Łazienki
2
Basen
1
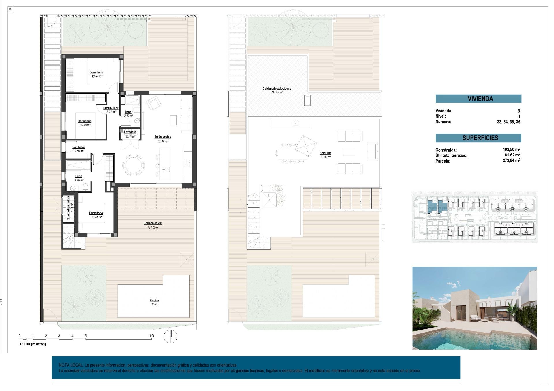
Metraż
102 m²
Działka
273 m²
Pow. użytkowa
95 m²
Taras
205 m²
Odległość od plaży
900 m²
Udogodnienia
- Communal Pool
- Garden
- Gated
- Terrace: 205 Msq.
- Solarium: Yes
- Number of Parking Spaces: 1
- Beach: 900 Meters
- Near Golf / Golf Resort Property
- Near Schools
- Near Commercial Center
- Near Bus Route
- Location: Coastal, Urbanisation
- Useable Build Space: 95 Msq.
- Air Conditioning: Pre-Installed
- Double Bedrooms: 3
Pobór Energii
B
Emisja energii
B
Ekskluzywne wille i bungalowy na Costa Cálida – design, komfort i uprzywilejowana lokalizacja
Projekt łączący prywatność i życie we wspólnocie
Odkryj nową koncepcję mieszkaniową na Costa Cálida, zaprojektowaną dla osób poszukujących idealnego połączenia prywatności, komfortu i życia społecznego. Ten ekskluzywny kompleks oferuje wolnostojące wille i bungalowy z dostępem do przestronnych obszarów wspólnych i wspólnego basenu, zapewniając to, co najlepsze z obu światów: spokój prywatnego domu i komfort wspólnych przestrzeni, którymi można cieszyć się z przyjaciółmi, rodziną i sąsiadami.
Wszystkie domy obejmują miejsce parkingowe i komórkę lokatorską w piwnicy, gwarantując bezpieczeństwo i wygodę mieszkańcom.
Nowoczesny design i opcje personalizacji
Osiedle oferuje szeroką gamę domów dostosowanych do różnych potrzeb i stylów życia:
Bungalowy na parterze z prywatnymi ogrodami o powierzchni do 122 m².
Bungalowy na najwyższym piętrze z dużymi tarasami i prywatnym solarium.
Jedno lub dwupiętrowe wolnostojące wille z działkami o powierzchni od 201 do 356 m² i różnymi opcjami układu i wykończenia.
Każdy dom został zaprojektowany tak, aby zmaksymalizować naturalne światło, tworząc przestronne i przyjazne przestrzenie. Apartament główny został starannie zaprojektowany, aby zagwarantować prywatność i komfort, całkowicie oddzielając część sypialną od łazienki, unikając zakłóceń światła lub hałasu w nocy.
Jakość i zrównoważony rozwój w każdym detalu
Domy te zostały zbudowane z wysokiej jakości materiałów i wyposażone w zrównoważone technologie, takie jak panele słoneczne i aerotermia, w celu poprawy efektywności energetycznej.
Wyjątkowe cechy:
Zmotoryzowane rolety w sypialniach.
Opancerzone drzwi wejściowe dla większego bezpieczeństwa.
Wstępna instalacja klimatyzacji kanałowej.
Nowoczesne łazienki z przegrodami ze szkła hartowanego i podwieszanymi meblami z lustrem LED.
Strategiczna lokalizacja w Los Alcázares
Położony zaledwie kilka metrów od prestiżowego pola golfowego Serena i 1 km od plaż Mar Menor, kompleks ten cieszy się uprzywilejowaną lokalizacją w Los Alcázares, jednym z najbardziej obiecujących obszarów Costa Cálida.
Ponadto łatwy dostęp do autostrady AP-7 umożliwia szybkie połączenie z innymi miejscami w regionie i ułatwia dostęp do podstawowych usług, takich jak supermarkety, centra sportowe, szkoły i apteki.
Odległości do interesujących miejsc
Pole golfowe La Serena Golf – 1 km (2 minuty jazdy samochodem).
Plaża Mar Menor – 1 km (2 minuty jazdy samochodem lub 10 minut spacerem).
Lotnisko Murcja – 35 km (30 minut jazdy samochodem).
Port Cartagena – 22 km (20 minut jazdy samochodem).
Lokalne centrum handlowe – 3 km (5 minut jazdy samochodem).
Śródziemnomorski styl życia z wysoką rentownością
Ten projekt to nie tylko doskonała opcja, aby cieszyć się śródziemnomorskim stylem życia, ale także bezpieczna inwestycja w rozwijającym się obszarze.
Nie przegap tej wyjątkowej okazji. Skontaktuj się z nami już dziś, aby uzyskać więcej informacji i zarezerwować swój idealny dom na Costa Cálida.